家装图纸怎么看
1、复核房屋的基本尺寸:
设计师在设计装修图时,都会有个基本的房型图,这个房型图与买房时的房型图纸大体一致,在看这些图纸时,要进行尺寸复核,拿一把5米的尺进行实地测量,如果发现不一致,要与装修公司提出,因为尺寸是核算装修价格的最基础数据。

2、检查水电路设计是否合理:
在装修图纸中,水电路的走线非常重要,要仔细斟酌考虑,开关、插座宁愿多些,也不要少,防止日后突然需要。如:强弱电是否分开、开关插座的高度、安装地点是否合适,很多人家发现,装修入住后,开关被床遮住了,根本不能用。

3、考虑有无漏项、多项:
在看家装图纸时,要考虑有无漏项、多项,漏的要补上,多余的要去除,因为这些都关系着装修费用。很多人的装修最终价格都比预算高出很多,就是因为有漏项。

4、
装修材料的型号、规格详细:
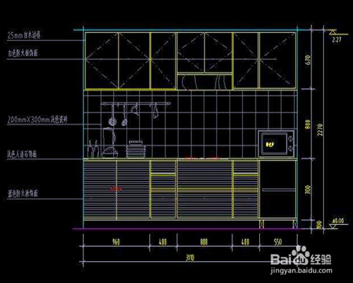
在装修图纸上,一般会标明装修材料的型号、规格,但是有的装修公司为了偷偷减少成本,并不会标注完全。要知道,同一个品牌的,规格有很多种,而且价格不一,所以一定要查看,要求注明。

5、提前考虑好家具的购买和安装:
在装修时,要考虑好家具是现打,还是购买现成的,家具的尺寸要提前准备好,并且在家装图纸上标注好,避免装修好后家具嫌大嫌长,不好放置。

6、检查设计是否合理:
并不是每个设计师都很有实际施工经验,有些布置并不合理,所以在看家装图纸时,要看图纸是不合理,比如橱柜的操作高度是否合适、暖风机是否放在洗澡的正中间,在实际施工中,有各种各样的装修错误。

阅读量:26
阅读量:47
阅读量:95
阅读量:47
阅读量:25